Kuhinja Express Winn W01
Express kuhinje predstavljajo sodobno nemško kakovost po dostopni ceni. Odlikujejo jih natančna izdelava, funkcionalen dizajn in hitra dobava. Ponuja širok izbor modernih, klasičnih in kompaktnih rešitev, ki združujejo estetiko, trajnost in praktičnost za vsak dom.
Izberi število obrokov, da dobiš mesečni izračun.
V košarici izberi Leanpay in v nekaj minutah zaključi obročni nakup.
Podrobnejši opis
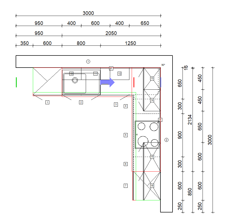
Kuhinja Express Winn W01
Dimenzija: 265x275cm
Fronte: karminsko rdeča
Korpus: antracit
Pult: cement temen
Ročaji: optika legiranega jekla
Kuhinjski aparati za doplačilo.














